




















 
 
北京腾翔耀辉气动设备有限公司 经销批发的气源、气缸、电磁阀、机械阀、其他附件消费者市场,公司与多家零售商和代理商建立了长期稳定的合作关系。北京腾翔耀辉气动设备有限公司经销的气源、气缸、电磁阀、机械阀、价格合理。北京腾翔耀辉气动设备有限公司重信用、守合同、以多品种经营特色和薄利多销的原则。
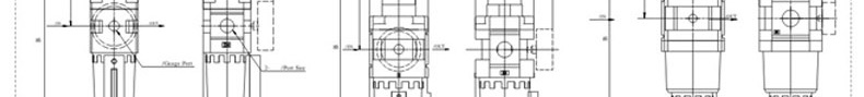
   公司不断引入设备,能自行设计、开发、生产气动元件。主要产品有气源处理元件、控制元件、气动执行元件、元件以及成套系统,应用于机械、冶金、食品、包装、纺织、电子等行业。
   公司一贯坚持“信誉至上、以质量求发展”的宗旨,在业内取得了良好的口碑,深受用户的信赖和好评。
热忱欢迎大家前来洽谈业务。
英制螺纹详细解释:
1分英制管螺纹即1/8英寸55度管螺纹,外径是9.728mm,内径是8.566mm,每英寸28牙,螺距0.907mm;
2分英制管螺纹即1/4英寸55度管螺纹,外径是13.157mm,内径是11.445mm,每英寸19牙,螺距1.337mm;
3分英制管螺纹即3/8英寸55度管螺纹,外径是16.662mm,内径是14.950mm,每英寸19牙,螺距1.337mm;
4分英制管螺纹即1/2英寸55度管螺纹,外径是20.955mm,内径是18.631mm,每英寸14牙,螺距1.814mm.
                                                            买家须知:
1、请买家在购买产品时与客服联系是否有货后再拍,如在无现货的情况下,买家无联系直接拍下付款,所造成无法发货的,请买家联系客服后申请退款或接受订货。
2、由于产品规格太多,买家不能一一称重,所以导致运费模块不好设置。请买家先拍下,再联系客服改价。客服会根据您的数量用电子秤称出重量后修改邮资。由此给您带来不便,敬请谅解。
3、发货时间:有现货的前提下,每天16:00之前付款的订单当天可以发出,之后的订单隔天发货。默认中通快递。
4、本网店提供七天无理由退换货,退换货产品不影响二次销售,包括产品外观和包装盒。来回运费买家自理。卖家给予买家产品质保,质保期间不承担来回运费,由买家自理。
5、买家收到货后如有问题,请及时与客服联系以便解决问题,如没有联系且不说明情况下直接中差评,一律终止售后。


 
 
 


 
 
 
 











 19228131880微信
19228131880微信