

一、视镜
1、 简介
衬氟视镜又名衬里视镜,国家执行标准(HG/T21622-1990).用以观测管路或设备中单元流体的流量、色泽、气泡、结晶情况,直接监控化工工艺流程,有利于指导操作。视镜体采用碳钢精铸,内衬氟塑料(F46), 镜片选用优质钢化玻璃,具有最佳的耐腐蚀性能和机械强度,且有外型美观、强度高、经久耐用的特点。广泛使用于石油、化工、农药、染化、制酸制碱等行业,是目前防腐设备最理想的选择。
2、型号意义
例:SJ41F-10C-100
SJ—视镜类型代号
4—连接型式为法兰
1—结构型式为直通式
F—衬里材料为氟塑料
10—公称压力为1.0MPa
C—视镜体材料为碳钢
100—公称通径为100mm
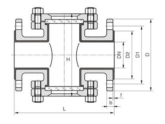
3、结构图




