本产品报价为参考价格,仅作支持网上交易用途。
产品具体规格、价格详谈!未经联系直接拍下不支持发货!
    
        
            |  | 
        
            |       
 
 
 
 
                
                    
                        | 特 点 |  
                        | 1、压力范围:150LB, 300LB 2、法兰面标准:ANSI B16.10-1992 3、法兰端标准:ANSI B16.5 4、设计:ANSI B16.34,API 608 5、测试:API 598,API 6D 4、适用介质:水,石油,空气,和一些腐蚀性的液体 5、全通径 6、硅溶胶铸造阀体 |       
 
   
                
                    
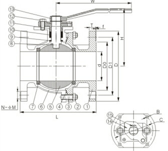
                        | 1 | 阀盖 | WCB/CF8/CF8M | 9 | 止推垫片 | PTFE |  
                        | 2 | 螺母 | SS304/SS | 10 | 填料 | PTFE |  
                        | 3 | 螺栓 | SS304/SS | 11 | 压盖 | SS304/SS |  
                        | 4 | 垫片 | PTFE | 12 | 压盖 螺栓 | SS304/SS |  
                        | 5 | 球 | SS304/SS316 | 13 | 手柄 | SS304/SS |  
                        | 6 | 阀体 | WCB/CF8/CF8M | 14 | 定位销 | SS304/SS |  
                        | 7 | 阀座 | PTFE | 15 | 隔环 | SS304/SS |  
                        | 8 | 阀杆 | SS304/SS316 |  |  |  |  连接尺寸  
                
                    
                        | DN | d | B | H | W | C |  | Do | D1 | D | T | f | N-фM | L |  | Do | D1 | D | T | f | N-фM | L |  
                        | 1/2" | 15 | 11 | 73 | 130 | 42 | 150LB | 35 | 60.5 | 89 | 11 | 2 | 4-M15 | 108 | 300LB | 35 | 66.5 | 95 | 15 | 2 | 4-M15 | 140 |  
                        | 3/4" | 20 | 11 | 76 | 130 | 42 | 43 | 70 | 98 | 11 | 2 | 4-M15 | 117 | 43 | 82.5 | 117 | 16 | 2 | 4-M19 | 152 |  
                        | 1" | 25 | 14 | 86 | 160 | 50 | 51 | 79.5 | 108 | 12 | 2 | 4-M15 | 127 | 51 | 89 | 124 | 18 | 2 | 4-M19 | 165 |  
                        | 11/4" | 32 | 14 | 91 | 160 | 50 | 64 | 89 | 117 | 13 | 2 | 4-M15 | 140 | 64 | 98.5 | 133 | 19 | 2 | 4-M19 | 178 |  
                        | 11/2" | 38 | 17 | 119 | 200 | 70 | 73 | 98.5 | 127 | 15 | 2 | 4-M15 | 165 | 73 | 115 | 156 | 21 | 2 | 4-M19 | 190 |  
                        | 2" | 50 | 17 | 127 | 200 | 70 | 92 | 121 | 152 | 16 | 2 | 4-M19 | 178 | 92 | 127 | 165 | 23 | 2 | 8-M19 | 216 |  
                        | 21/2" | 65 | 22 | 136 | 200 | 102 | 105 | 140 | 178 | 18 | 2 | 4-M19 | 190 | 105 | 149 | 190 | 26 | 2 | 8-M22 | 241 |  
                        | 3" | 76 | 22 | 164 | 325 | 102 | 127 | 153 | 190 | 19 | 2 | 4-M19 | 203 | 127 | 169 | 210 | 29 | 2 | 8-M22 | 283 |  
                        | 4" | 94 | 22 | 178 | 325 | 102 | 157 | 191 | 229 | 24 | 2 | 8-M19 | 229 | 157 | 200 | 254 | 32 | 2 | 8-M22 | 305 |    | 
    
 
 
    
        
            |  | 
        
            | 1.流体阻力小,全通径的球阀基本没有流阻。 2.结构简单、体积小、重量轻。3.紧密可靠。它有两个密封面,而且球阀的密封面材料广泛使用各种塑料,密封性好,能实现完全密封。在真空系统中也已广泛使用。
 4.操作方便,开闭迅速,从全开到全关只要旋转90°,便于远距离的控制。
 5.维修方便,球阀结构简单,密封圈一般都是活动的,拆卸更换都比较方便。
 6.在全开或全闭时,球体和阀座的密封面与介质隔离,介质通过时,不会引起阀门密封面的侵蚀。
 7.适用范围广,通径从小到几毫米,大到几米,从高真空至高压力都可应用。
 8.由于球阀在启闭过程中有擦拭性,所以可用于带悬浮固体颗粒的介质中。
   | 
    
 
    
        
            |  | 
        
            |    温州市温宝球阀有限公司是一家专业球阀制造公司,创建多年,现以稳健的步伐不断的壮大,现生产产品种类繁多,规格齐全。 温宝公司建于1985年,至今已拥有雄厚的技术力量和先进的机械加工设备,及现代化的检测手段,其阀门设计制造及检验均符合国家及国际标准,产品历年来荣获各种名优产品及信得过产品,特别受到化工、石油、冶金、轻工、电力、食品、制药、民用、纤维等行业的欢迎;并通过国家特种设备制造许可证(TS)。竭诚欢迎国内外新老客户来电,来函、洽谈、订购、携手共创辉煌。
 | 
    
 
 
    
        
            |  | 
        
            | 一、购物前:有任何问题,可以随时咨询哦,我们一定会耐心为你解答的。二、关于产品的价格:部分网上价格仅供参考,具体产品价格请致电咨询卖家。
 三、关于物流:具体物流方式和费用由买卖双方协商决定。
 | 
    
 
 
 
